JAMES CLUB /2016/

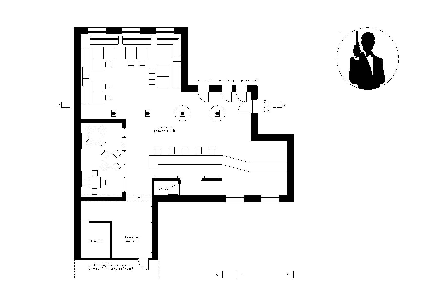
Návrh se zabývá úpravou prostoru pro nově plánovaný club v Hostinném. Základním předpokladem jsou co nejmenší počáteční finanční náklady. K zásahům do stávajících konstrukcí proto nedochází, pouze místnost za pultem DJ je přepažena lehkou SDK příčkou. Dispozice jinak zůstává beze změny. Pozice WC i skladů může být zachována, je funkční. Podle přání je hlavní barvou výmalby cappuccino, která je postavena do kontrastu s tmavou barvou v místech baru a v taneční části.