U Pramene /2014/

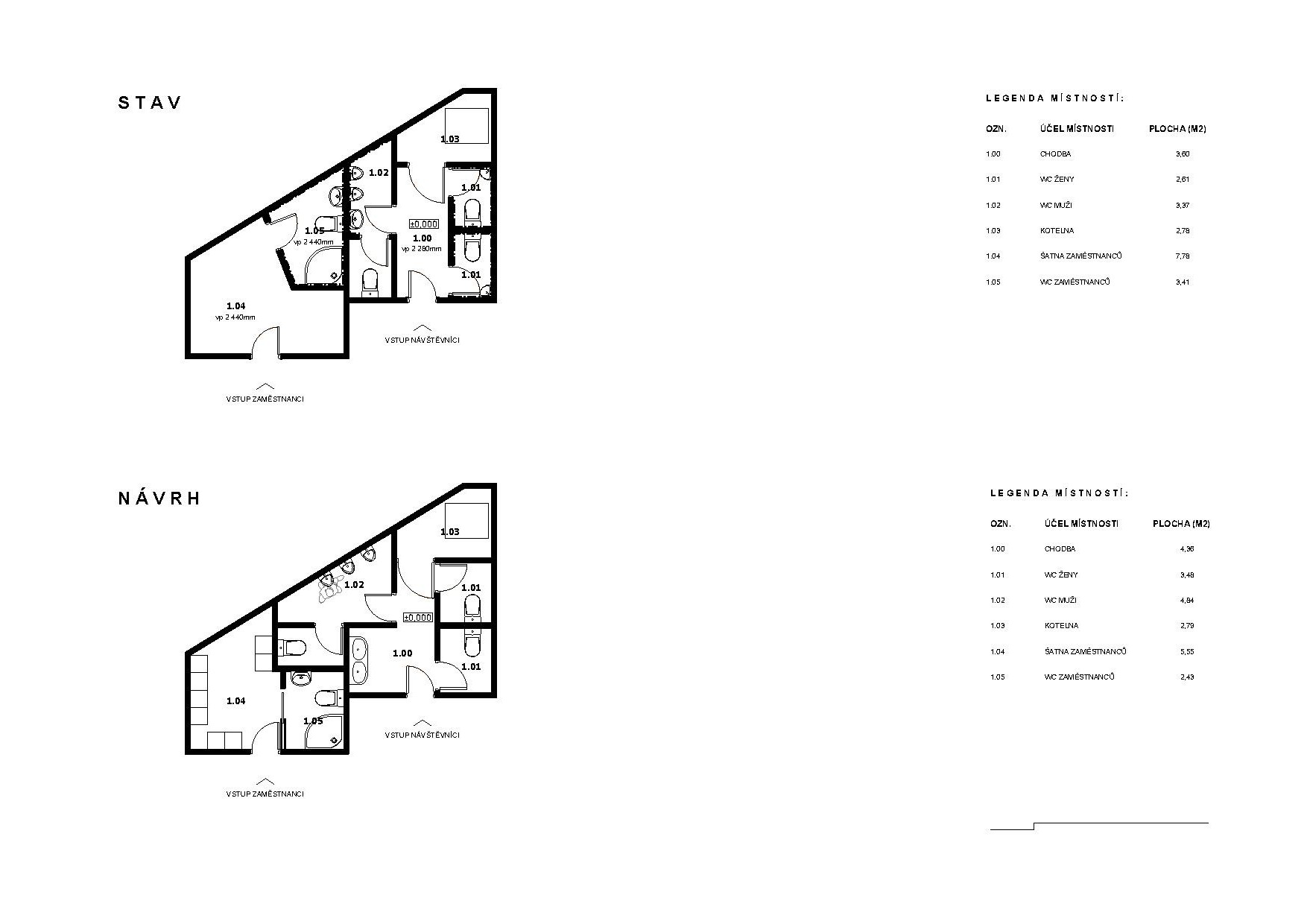
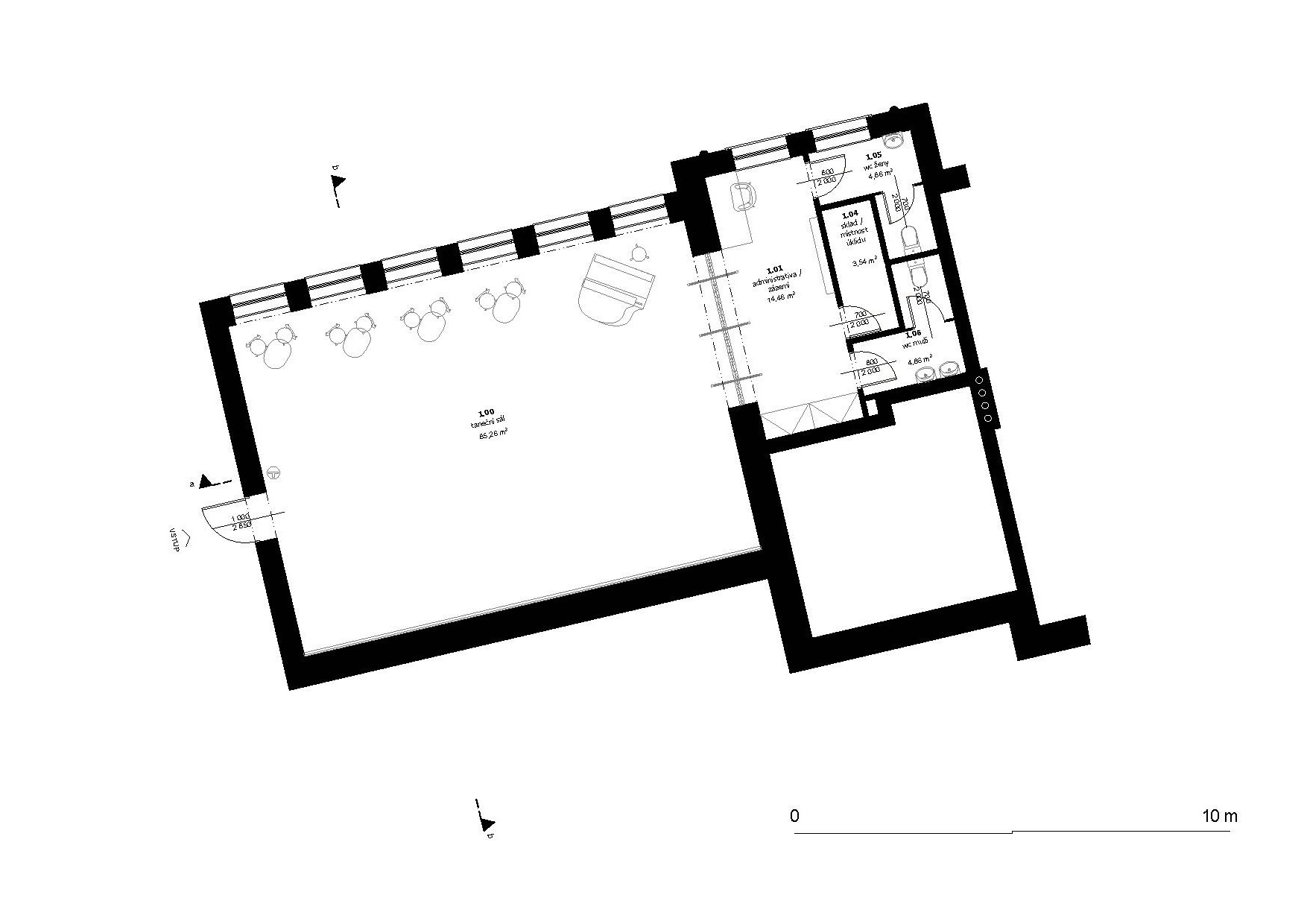
Klienti, majitelé restaurace U Pramene v Praze - Bubenči se odhodlali k úpravě současně nevyhovujícího wc a zázemí zaměstnanců v přízemí budovy a proměnou prošel také sál v druhém nadzemním podlaží, který měli v úmyslu dále pronajmout. V souvislosti s tímto krokem musel být upraven i prostor vstupu a vjezdu do restaurace tak, aby mohly oba provozy fungovat nezávisle na sobě. Prostor wc nevyhovoval jak vzhledově tak dispozičně. Cílem proto bylo najít nové lepší uspořádání minimálně při zachování stávající kapacity a samosebou změnit vizuál. Návrh sálu byl vytvořen a používán pro lepší představu potenciálních nájemců o sálu a jeho možnostech. Zpracován byl ve dvou variantách pro nejvážnější zájemce a to v podobě kancelářských prostor a prostoru sloužícího provozu taneční školy.